Eladó Téglalakás, Miskolc

#698900713

Eladó Téglalakás

29.95 millió Ft

Miskolc
Alapterület:
55 m2
Szobák száma:
2 + 1
Állapot:
Átlagos
Építési mód:
Tégla
Azonnal költözhető
CSOK igényelhető
Jó közlekedéssel

Kérjen személyes bemutatást!
Adja meg adatait, és hogy mikor érne rá!

Az Adatkezelési tájékoztatót elolvastam és elfogadom.

Megfelelő időpontok

Hétköznap délelőtt
Hétköznap délután
Hétköznap este
Hétvégén délelőtt
Hétvégén délután
Hétvégén este
Kérés elküldése
2. Emelet
Felújításra szoruló
Konvektor
Utcára
Észak
Összkomfort
Nem akadálymentesített
Bevezetve (230 Volt)
Van
Vezetékes gáz
Közműhálózatba bekötve

Garázzsal rendelkező lakás eladó Miskolc-Selyemrét csendes részén

Ritka lehetőség kedvező áron! Eladó egy téglaépítésű, háromszintes társasház 2. emeletén található, azonnal költözhető lakás saját szerelőaknás garázzsal ami mindössze 30 méterre található a ház bejáratától.
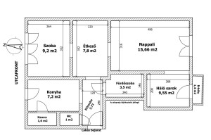
Az ingatlan erkélyes, két szobával, hálóval, étkezővel, konyhával, fürdőszobával, kamrával, külön WC-vel és előszobával rendelkezik – tágas tereivel több gyermekes család számára is ideális választás. A fűtést gázkonvektor biztosítja, a melegvizet a fürdőszobában gázüzemű berendezés adja, míg a konyhai munkákhoz 10 literes vilanybojler szolgáltatja. Az ablakok hagyományos fa szerkezetűek és redőnnyel rendelkeznek.


A 2,2 méter széles ajtóval rendelkező garázs biztonságos helyet nyújt autójának, míg a lakás barátságos elrendezése és azonnali költözhetősége valódi értéket képvisel ezen a környéken.

Érdemes élni ezzel a ritka lehetőséggel, ahol az ár és az érték tökéletesen találkozik!

 

Helyiség Méret (m2)
Szoba 9.28
Szoba 9.55
Nappali 15.6
Étkező 7.8
Fürdőszoba 3.5
WC 1
Konyha 7.2
Előszoba 3.7
Kamra, Éléskamra, Spájz 1.6

Kozák Csaba
 

Kérdése van?
Adja meg adatait és felhívjuk!

Az Adatkezelési tájékoztatót elolvastam és elfogadom.
Üzenet küldése